Rif: castagnole 80 centro storico
CASTAGNOLE DELLE LANZE
ASTI
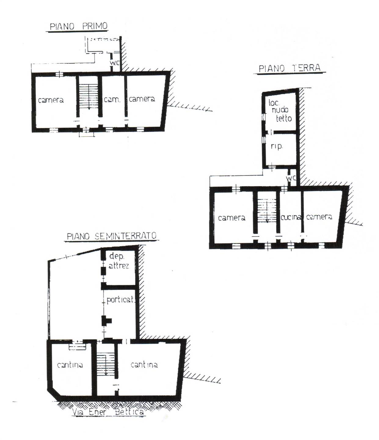
Nel cuore del centro storico di Castagnole delle Lanze, paese Patrimonio Unesco per le sue bellezze, casale molto antico ma strutturalmente molto sano. Con fantastiche caratteristiche tipiche delle vecchia casa piemontesi, ideale per chi vuole ristrutturare un pezzo di storia. La casa offre la possibilità di creare una bella abitazione privata o una casa vacanza con il cortile interno molto privato e la vista panoramica che si scorge dalle finestre come un quadro sulle colline delle Langhe.
Grande cantina con volte a mattone vecchio a vista, scala in pietra, camere spaziose e camini in ogni stanza.
L'agenzia LANZE IMMOBILIARE opera sul territorio da circa 20 anni con esperienza in campo contrattuale e commerciale Un servizio a 360° dalla valutazione iniziale del vostro immobile sino all'atto davanti al Notaio, passando per il servizio fotografico, alla pubblicazione sui migliori portali immobiliari specifici di settore, alla promozione della vostra casa, alla ricerca della documentazione tecnica, alla raccolta della proposta d'acquisto sino alla conclusione dell'affare. Per chi acquista.. . vi diamo consulenza e assistenza anche per il mutuo! Ecco come contattarci! WhatsApp tel. 338/5610954 Oppure siamo in agenzia in Piazza San Bartolomeo n. 12 a Castagnole delle Lanze tutti i giorni esclusa la domenica.
Grande cantina con volte a mattone vecchio a vista, scala in pietra, camere spaziose e camini in ogni stanza.
L'agenzia LANZE IMMOBILIARE opera sul territorio da circa 20 anni con esperienza in campo contrattuale e commerciale Un servizio a 360° dalla valutazione iniziale del vostro immobile sino all'atto davanti al Notaio, passando per il servizio fotografico, alla pubblicazione sui migliori portali immobiliari specifici di settore, alla promozione della vostra casa, alla ricerca della documentazione tecnica, alla raccolta della proposta d'acquisto sino alla conclusione dell'affare. Per chi acquista.. . vi diamo consulenza e assistenza anche per il mutuo! Ecco come contattarci! WhatsApp tel. 338/5610954 Oppure siamo in agenzia in Piazza San Bartolomeo n. 12 a Castagnole delle Lanze tutti i giorni esclusa la domenica.







